A spa-like retreat that is uniquely Vancouver. A natural space, deposed yet inspired by its bustling urban environment. This eclectic collection of natural textures blend to form a heavily layered ultra-graphic, yet tonally monochromatic palette, an augmentation to its extrinsic environment.
Project Type: arch / Major Renovation, Multi-Family (CD-1)
Project Stages: Schematic Design, Design Development, Project & Budget Management, 3d Rendering, Material Specification, Lighting & RCP Design, Construction drawings, Permit Application (2017), Redesign & Re-Application (2018)
Design: Chris Lee (Thesis Corp)
Location: Vancouver, BC Canada (Yaletown)
Status: Completed, 2018
Construction: Showcase Interiors, Ltd
*Identifiable details and completed site photos omitted at request of owner.

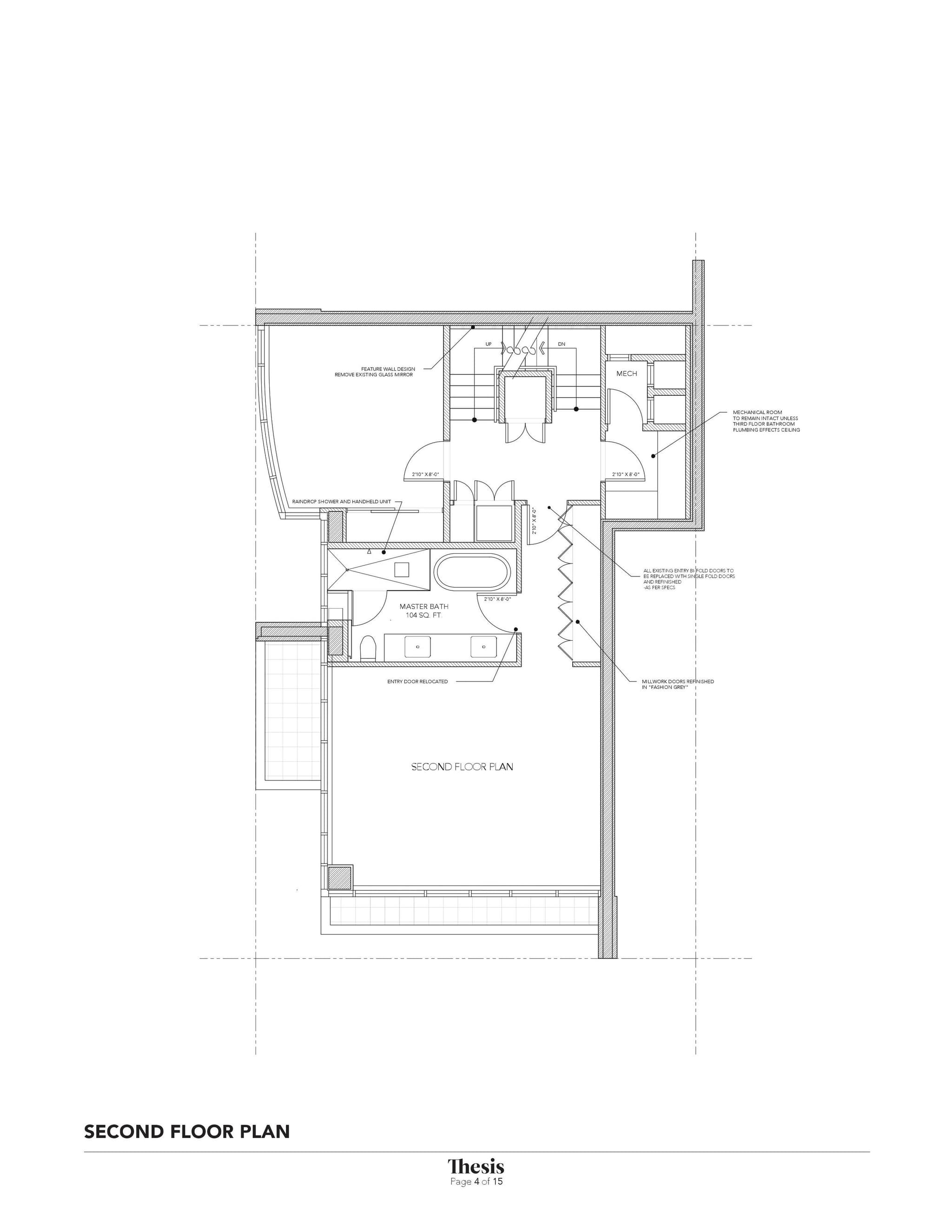
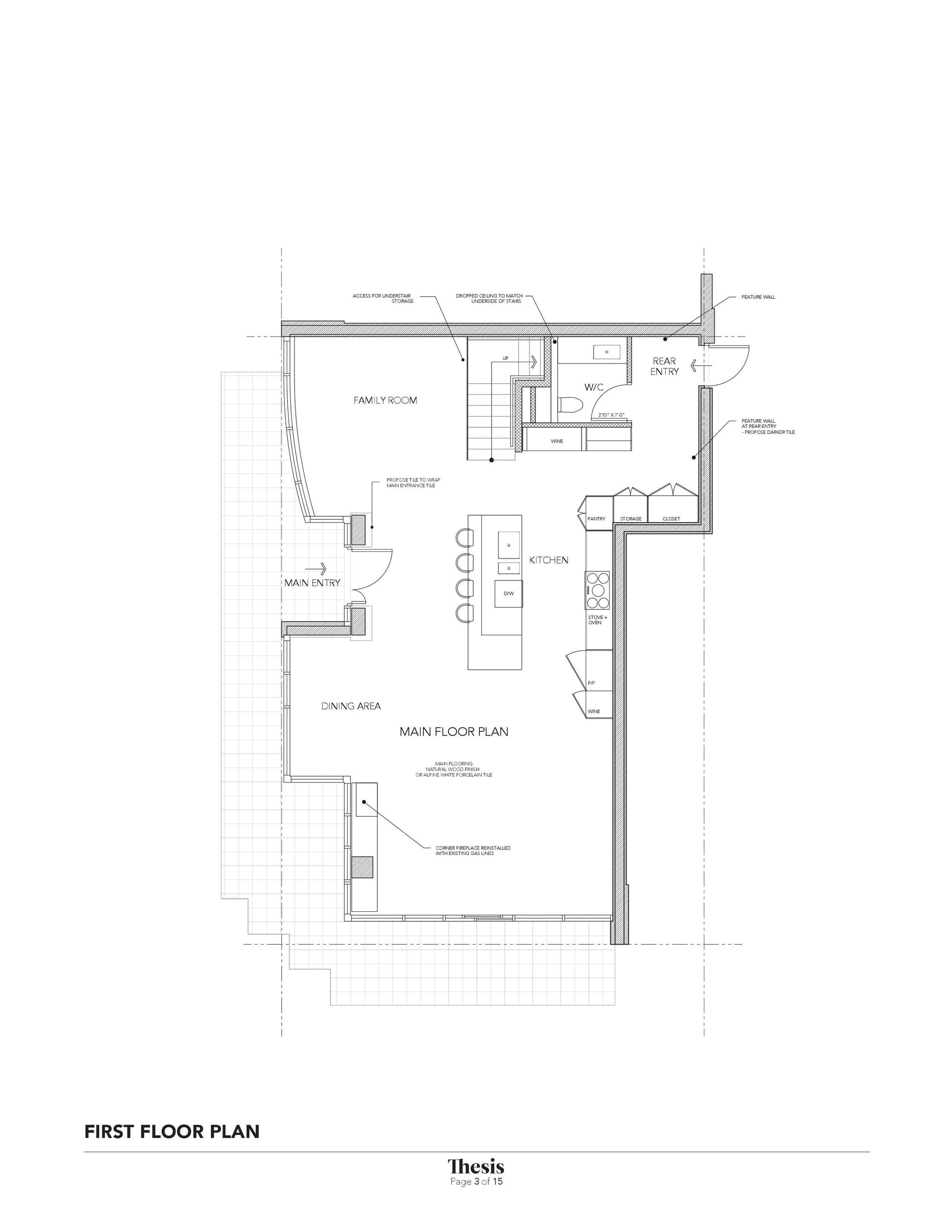
European Oak cabinetry in a Natural finish houses the Miele Kitchen. Flooring in Light 7” Engineered Oak. Countertop and backsplash in ‘Light Emperador’ Marble. The 3 story feature wall at the staircase in honed Italian ‘Grey Lightning Marble’.

Cast in place acid-washed concrete counter tops are carried through from the exterior while minimally processed woods create the warmth of freshly harvested forest within the site’s concrete jungle. Layered stones of Quartzites, neutral black/white hues of Slates, graphic Grey Lightning, Bianco Iceberg & Brilliantly White Italian Carrara marbles are applied in large formats alongside high end Italian porcelain tiles, all in varying degrees of honed to reflective finishes.

The original bar-style kitchen was removed and the space was given to the guest bath and feature wall of full height casework including a custom 80-bottle wine cellar. A new monochromatic gallery style kitchen with wrap around casework was grafted into the former dining area and rear entrance foyer.

The main floor’s closet-esque 3’ x 6’ Sq Ft. powder room was converted into a large guest bathroom utilizing the original 6’ 6” ceiling height as a ‘drop ceiling’ design which framed the sink and vanity. The drop ceiling area (under stair risers) are the only remnants of the pre-existing space.



The previously visible structural column was built out to feature a casework storage unit and, completely lacking in any natural light, a playful vertical column of indirect light was crafted which continues into the full perimeter cove lights.



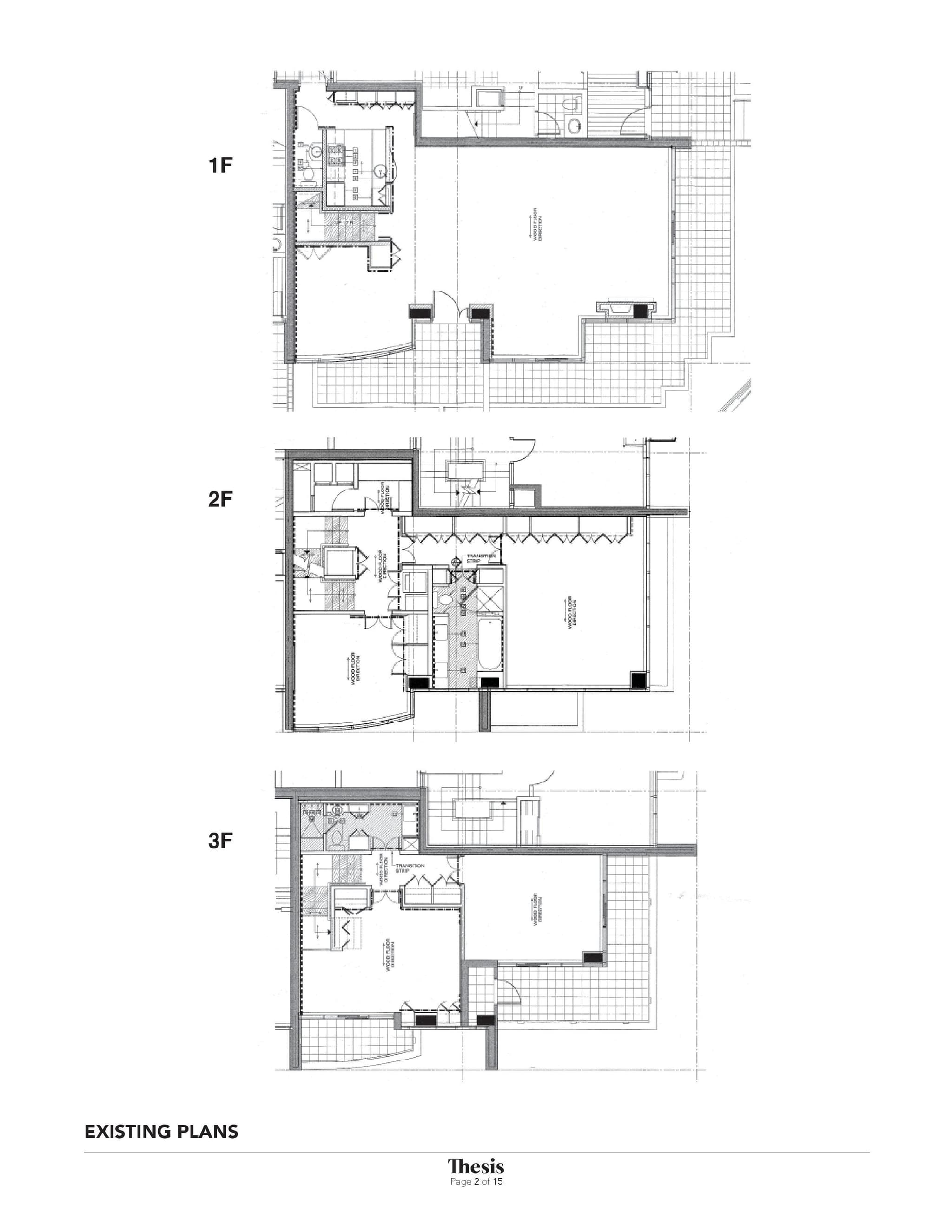
The original condition pre-renovation.

The completed design featuring the gallery style kitchen and enlarged guest bath. The wrap around casework provided significantly more storage without reduction to the previously underutilized rear entrance foyer.

The Master Bathroom received major changes to the fixture locations to ensure the best Feng-Shui for the Owner according to the consulting Master’s requirements for the space.